Neubau eines Doppelhauses mit Garagen
Hohenwart

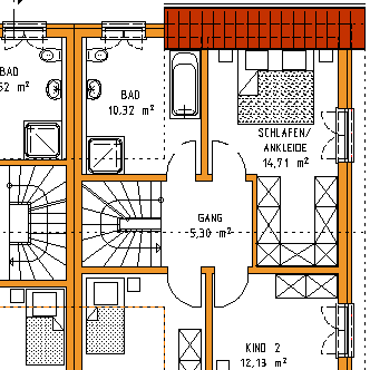
In Hohenwart wurden zwei Haushälften ohne Kellergeschoss mit je ca. 120 qm Wohnfläche erstellt.

Die Heizanlage wurde im Dachspitz installiert. Ein zusätzliches Zimmer im Dachspitz, ein separater Waschraum im Erdgeschoss und ein Geräteraum hinter der Garage bieten ausreichend Stauraum.

EG
OG